Продам 2-х эт. дом качественной постройки ул.Гарманная/Червоный Хутор. (№ 22-373-277)
Цена: 110 000 $

Адрес: Червоный хутор/Гарманная, Одесса, Одесская, Киевский
Характеристики
| Цена: | 110 000 $ |
|---|---|
| № объекта: | 22-373-277 |
| Тип: | дом |
| Этажей: | 2 |
| Спален: | 4 |
| Площадь дома: | 125 м2 |
| Участок: | 2.5 сот |
| Дополнительно: | коттеджный городок |
Описание
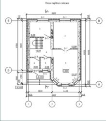
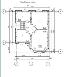
Продам 2-х эт. дом качественной постройки ул.Гарманная/Червоный Хутор. Общая площадь 125 кв.м., 4 комнаты, 2 с/у. Дом построен в ноябре 2021 года. Состояние- под внутреннюю отделку. Фундамент: глубина 1,8 метра, фундаментная плита, фундаментные блоки стянутые армопоясом. Стены: газобетон толщиной 400 мм, армированный арматурой через каждый 4 ряд. Перекрытия: железобетонные плиты и 1 и 2 этаж. Окна: завода Steko, профиль 70 мм., стеклопакет двойной с аргоном и энергосбережением, снаружи ламинированные в графитовый цвет. Кровля: стропильная система 200 мм, утепление 200 мм, металлочерепица 0,5 мм украинского производства. Фасад: утеплен минеральной ватой 50 мм, системой Caparol, финишное покрытие - барашек 1,5 мм. Внутреняя отделка: стены оштукатурены гипсовой шпатлевкой, в местах предпологаемых санузлов- цементно-песчаным раствором. В дом заведены электричество и вода. Канализация - выгребная яма 3 кольца 1,5 м в диаметре. Газ в соседнем доме. Есть фотофиксация всех этапов строительства!!! Участок 2,5 сотки. Цена 110 тыс. у.е.
















