Продам новый 3-х этажный дом на 10 ст. Большого Фонтана. (№ 22-410-987)
Цена: 285 000 $

Адрес: Арбузная ул., Одесса, Одесская, Киевский
Характеристики
| Цена: | 285 000 $ |
|---|---|
| № объекта: | 22-410-987 |
| Тип: | дом |
| Этажей: | 3 |
| Спален: | 4 |
| Площадь дома: | 243 м2 |
| Участок: | 4.4 сот |
| Дополнительно: | гараж |
Описание
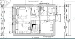
Продам новый 3-х этажный дом на 10 ст. Большого Фонтана. Состояние от строителей. Общая площадь дома 243 кв.м. Четыре спальни, кабинет, гостиная, кухня, три санузла, туалет, спортзал, топочная, спортзал, техпомещения. Дом из экологического красного керамического блока, облицованный фасадным кирпичом. Фундамент монолит. Цокольный защищённый этаж с толщиной стен 60 см. и два перекрытия толщиной 50 см. армированного бетона. Можно расположить спортзал, топочную, постирочную, кладовую, генераторную. Усиленный армированный бетон, толщина наружных стен цоколя 600 мм бетон и 100 мм эппс, толщина перекрытия 240 мм. Первый этаж: гардероб, санузел, кабинет, гостиная, кухня, лестница, гостевая спальня. Перекрытия (пол, потолок), монолитная плита 240 мм, фасадные стены 640 мм (керамический 2,12 эффективный блок (СБК) 520 мм + облицовочный керамический кирпич 120 мм), внутренние перегородки керамический кирпич. Окна REHAU GENEO - толщина профиля 86 мм, толщина тройного стеклопакета 42 мм.
Второй этаж: мастер спальня с гардеробом и санузлом, спальня (детская №1), спальня (детская №2), туалет, ванна. Перекрытие потолок деревянные балки 400 мм, фасадные стены 640 мм (керамический блок (СБК) + облицовочный керамический кирпич), внутренние перегородки керамический кирпич. Крыша- керамическая черепица.Подведены городские коммуникации: электричество - 27 кВ., водопровод и городская канализация, газ. Дом готов к прокладке внутренних коммуникаций и отделке. Земельный участок 4,39 сотки с госактом. Четыре места для автомобилей. Дом расположен на небольшой улице, без трафика машин. В пешей доступности детские сады, школы, спортивные комплексы, спа-центры, пляж. Цена 285 тыс. у.е.























