Продам 1-ком.кв. ул.Вице-адмирала Азарова/ЖК «Otrada Sky”. (№ 212-709-370)
Цена: 88 000 $

Азарова Вице-Адмирала ул., 8, Одесса, Одесская, Приморский
Характеристики
| Цена: | 88 000 $ |
|---|---|
| № объекта: | 212-709-370 |
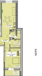
| Комнат: | 1 разд |
| Этаж: | 5 / 12 лифт |
| Площадь: | 63 / 17 / 23 м2 |
| Санузел: | 1 совмещенный |
| Балкон: | лоджия |
| Дополнительно: | новостройка |
Описание
Продам 1-ком.кв. ул.Вице-адмирала Азарова/ЖК «Otrada Sky”. 5/12 эт., 63/17/23 кв.м. Клубный дом в тихом зеленом районе, рядом со спуском к морю, парком, центром города. Дом сдан, кирпич. Состояние от строителей, вид из окна на море. Окна- евробрус, энергосберегающие, высота помещений 3 метра, лифты OTIS, на территории комплекса предусмотрена гостевая парковка. Закрытая охраняемая территория, развитая инфраструктура, рядом лучшие пляжи, рестораны, магазины, салоны. Отличное предложение в курортной части города рядом с морем. Цена 88 тыс. у.е.












