Продам прекрасную 3-х кв. ул.Генуэзская / ЖК «Родос» (№ 212-805-687)
Цена: 100 000 $

Генуэзская ул., 1, Одесса, Одесская, Приморский
Характеристики
| Цена: | 100 000 $ |
|---|---|
| № объекта: | 212-805-687 |
| Комнат: | 3 разд |
| Этаж: | 3 / 25 лифт |
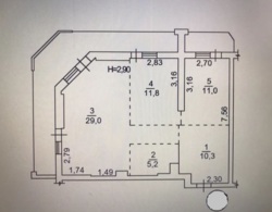
| Площадь: | 76 / 35 / 25 м2 |
| Санузел: | 2 совмещенный |
| Балкон: | балкон |
| Дополнительно: | новостройка |
Описание
Продам прекрасную 3-х кв. ул.Генуэзская / ЖК «Родос». Аркадия. 3/25 эт., 76/35/25 кв.м. Состояние от строителей. Свободная планировка. Квартира просторная, очень светлая, с 4 балконами по всему периметру квартиры. Такая планировка одна на этаж. Вид на ул.Генуэзскую и площадь 10 Апреля. Рядом море, парк Победы, Аркадийская аллея, ТЦ «Сады победы», «Кадорр сити молл», «Гагарин плаза». Возможен обмен на частный дом в Одессе- в Киевском и Приморском районе. Цена 100 тыс. у.е.














